Garden Design Image
Garden Plan Image

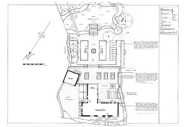
Informal Country Garden – Smarden, Kent

My clients have a stunning medieval house in Smarden but the garden had been neglected for many years and so they were keen to make a fresh start with a new design for the whole area. Their brief was to design a garden that was contemporary whilst reflecting on the historic nature of the house and which made use of local traditional materials.

The area immediately around the back of the house only consisted of existing crazy paving and so it was from here that I started the new design. I then expanded the plan to incorporate new areas in the rest of the garden which included the existing mature trees and a historic pond further away from the house.

A new courtyard area was made close to the house with a mix of Limestone and Dutch brick paver areas and included a dining area under Parasol Morus trees, a new brick wall with planting and Pleached Carpinus trees for screening, four rectangular beds set within the paving, two new seating areas and a bespoke water feature.

Wide steps set within new brick retaining walls led up to new double borders and trees framing the historic pond and on to an area of native trees, bulbs and grass which was to be left to grow wild in the summer with paths mown through.

This project has been built in stages and the final stage consisting of a new kitchen garden and outdoor kitchen will be completed later this year.

Copyright: Sara Barraud | Mobile: 07771 611566 | Email: sarabarraud1@gmail.com |  Penshurst, Tonbridge, Kent.
Sara provides Garden Design Services throughout Kent and Sussex.